Video
91 St Albans Street, St Albans
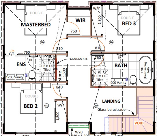
- 4

- 3

- 4

For Sale
Price By Negotiation
Would this be your next dream home?
Designed and built by FAYE Homes, this brand new exquisite two-story residence comes complete with a 10-Year Master Builder Guarantee, offering outstanding quality and peace of mind. Featuring 4 generous bedrooms and 3 stylish bathrooms, the home seamlessly blends architectural flair with modern family functionality.
Striking Architecture
A refined mix of timber cladding and a sleek plaster finish creates a bold, contemporary exterior. Inside, a set of elegant floating stairs adds a sculptural centrepiece, enhancing the home's sense of space and sophistication.
Premium Interiors
Step into a world of high-end craftsmanship: a designer kitchen showcasing an engineered scratch- and fingerprint-resistant stainless steel benchtop, real wood veneer cabinetry, and premium Miele appliances. All bathrooms are beautifully tiled with underfloor heating, complemented by luxurious flooring throughout. A central air-conditioning system ensures year-round comfort, keeping your home perfectly temperate in every season.
Exceptional Indoor-Outdoor Living
Large sliders open out to an expansive outdoor decking area, ideal for summer entertaining, morning coffee, or relaxed family gatherings.
Ideal for Families
Zoned for some of Christchurch's most sought-after schools-Christchurch Boys' High, Christchurch Girls' High, Heaton Intermediate, and St Albans Primary-this home provides superb education opportunities.
Perfectly positioned, you're just moments from Merivale Shopping Centre with its boutique stores, cafés, and essential amenities. The central location offers convenient access to the city, nearby parks, and major transport routes.
This is a rare opportunity to secure a brand-new home combining exceptional design, prime location, and outstanding build quality in one of Christchurch's most desirable neighborhoods.
To download property files please go to : https://www.propertyfiles.co.nz/912540005
Enquire today - call Gray Gong 021 1701 633 for a private viewing or just pop into one of our open homes!
Please be aware that this information has been sourced from third parties. View our property information disclaimer here: raineandhorne.co.nz/property-disclaimer

Gray Gong
Franchise Owner & Licensed Agent
Got a property to sell? Contact us for a free Request Appraisal
Property Info:
- Property ID: L37152977
- Property Type:House
- Building / Floor Area:205 sqm
- Garages:2
- Open Parking:2
- Land Area:335 sqm
Recently Listed
Recently Sold

