Parklands | New Brighton | Shirley | Burwood | Marshland
- Buy
- Rent
- Sell
- About Us
- Contact Us
- Sign In or Register
Video
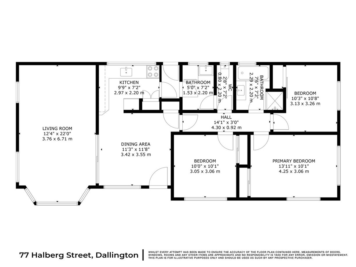
77 Halberg Street, Dallington
- 3

- 1

- 2

Sold
Charming And Practical!
This cozy 3-bedroom, 1-bathroom home boasts a double garage with off-street parking, ideal for families or those seeking space for hobbies.
The open-plan kitchen and dining area are perfect for entertaining with abundant cupboard storage.
Stay comfortable year-round with a heat pump providing efficient heating and cooling. A separate laundry adds convenience to your daily routine. Outside, a spacious outdoor area offers endless possibilities for kids to play and adults to relax.
Situated conveniently close to The Palms Shopping Centre, everything you need is within easy reach. Whether you're enjoying family dinners in the open kitchen or watching the kids play outside, this home offers comfort and convenience in a sought-after location.
To register your interest in this property and to download property documents, go to http://www.mikepero.com/RX4076790 and complete the 'Enquire About This Property' section at the foot of the page.

Nick McIsaac-Luke
Franchise Owner & Licensed Salesperson
Got a property to sell? Contact us for a free Request Appraisal
Property Info:
- Property ID: L31014673
- Property Type:House
- Building / Floor Area:100 sqm
- Garages:2
- Land Area:607 sqm
We Know Your Area
| R&H Suburb Summary | Houses |
|---|---|
| Number of sales | 37 |
| Average Price | $632,157 |
| Median Price | $633,000 |
| Median Rental Price | $ p.w. |
| Change in Rental Rate (5yr) | n/a |
Median Trend - $633,000
Recently Listed
Recently Sold

