Raine & Horne Alexandra | Cromwell
- Buy
- Sell
- About Us
- Contact Us
- Sign In or Register
Video
7 Wilson Street, Omakau
For Sale
Enquiries Over $379,000
Pure Theatre - Utilise or Improvise
Please note: This offering includes land & buildings. Refer full property pack for further information.
Space? Street frontage? Central Otago? Town hall? You're in luck.
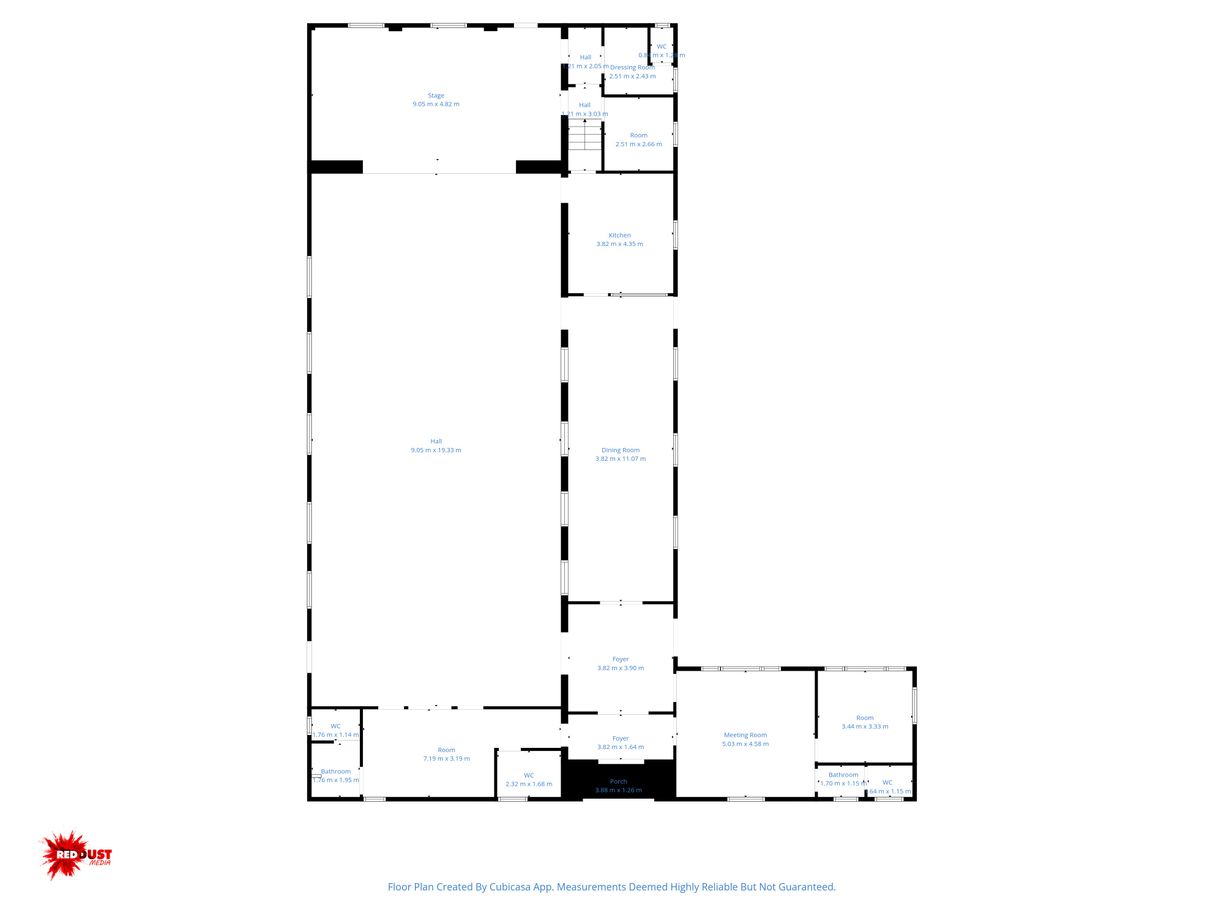
There's options aplenty with the 1950s Omakau District Memorial Community Centre, being a large space right in the centre of town. The owner has undertaken a multitude of tasks since owning the building, most notably completing non-consentable renovations, maintenance and a massive tidy up. Investigation also has been undertaken with the local council into it status for use and there's information, on request, that could be helpful to the astute buyer.
The hall, at 430sqm, boasts multiple rooms including the main hall area with stage and backstage area, two smaller community meeting rooms, formerly used for childcare, a kitchen and 4 operating toilet areas. There are exits out of the building into a spacious outdoor area. The property is bordered either side by presently operating local businesses.
Omakau is located in Central Otago's Manuherikia Valley approximately 20 minutes from Alexandra on the Otago Central Rail Trail. The town is popular with cyclists, holiday-makers and day trippers.
The local owner has completed the tough stuff and now wants to pass it on to someone with an extended vision for it. This is a super opportunity. Call Rhys Chamberlain today to discuss further.
Disclosure: This property is zoned in a Business Resource Area on the Central Otago District Plan. While marketed as a residential/section opportunity, any change of use (e.g. to residential) is subject to council approval and may require resource consent. Buyers must undertake their own due diligence as to the suitability for their intended purpose.
Please be aware that this information has been sourced from third parties. View our property information disclaimer here: raineandhorne.co.nz/property-disclaimer

Rhys Chamberlain
Franchise Owner & Licensed Salesperson
Got a property to sell? Contact us for a free Request Appraisal
Property Info:
- Property ID: L34606474
- Property Type:Section Res
- Land Area:875 sqm
We Know Your Area
| R&H Suburb Summary | Houses |
|---|---|
| Number of sales | 11 |
| Average Price | $570,727 |
| Median Price | $569,000 |
| Median Rental Price | $ p.w. |
| Change in Rental Rate (5yr) | n/a |
Median Trend - $569,000
Recently Listed
Recently Sold

